bureau Calis

architectuur

 

 

home

Woning Nijmegen 2020

Pastorie Zoeterwoude 2019

Woonhuis Beuningen 2014

Woonhuis Haaren 2009

Woonhuis Groesbeek 2008

Verbouwing Leiden 2008

Kastenwand te Rotterdam 2006

Uitbereiding Oegstgeest 2005

Dakopbouw Leiden 2003

Europan Zwolle, 2005

Interieur Eindhoven Airport, 2004

Prijsvraag voor woning, Enschede 2004

Prijsvraag Osdorp, Amsterdam 2002

Woonhuis Nesselande 2001

V.O. 7 appartementen, Den Haag 2000

Afstudeeropdracht 1999

 

 

 

tuingevel

 

pl

tuingevel

makette

 

verzamel

 

eetkamer

 

ver

 

gangboven

 

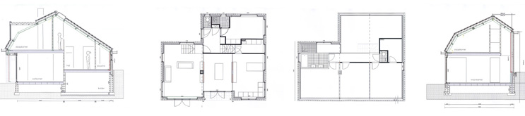
Woonhuis te Groesbeek, 2008 200m2

De opdrachtgevers hadden beschikking over een bosperceel van 1.5 ha en wilden daarop een woning en schuur realiseren. Het huis moest een knus karakter krijgen en tegelijkertijd licht en ruim worden. Het bouwvolume mocht maximaal 600m3 groot worden, maar er was ook een vraag naar een woon-, werk- en eetkamer, een keuken en drie slaapkamers. Het moest dus een compacte woning worden om alle functies te kunnen herbergen

Het terrein loopt geleidelijk aan af naar beneden. Het hoogteverschil is opgenomen in de woning waardoor er drie gebieden ontstaan. Een entreegebied aan de noordkant, met de hal en de werkkamer. Vanaf deze verdieping kan je naar beneden naar de woonverdieping of neem je de trap naar de slaapverdieping die een halve verdieping hoger ligt. De hal staat in open verbinding met de overloop op de eerste verdieping en de aangrenzende slaapkamers. Deze open ruimte loopt door in de vide boven het entree naar de woonkamer. Een lange lichtstraat verlicht deze ruimte.

Vanuit de hal daal je af in de woonkamer die zich op de kop van de woning bevindt. Deze ruimte is driezijdig georienteerd door ramen en openslaande deuren naar de tuin. Vanuit de woonkamer heb je tevens zicht op de vide boven de trappenzone.

Direct daarnaast ligt de eetkamer. Woon- en eetkamer zijn gescheiden door de haard. De eetkamer bevindt zich tussen woonkamer en keuken en heeft een klein overdekt terras met openslaande deuren.

De ruime keuken bevindt zich in de andere kop van het gebouw. De keuken heeft een eigen zij-ingang naar de tuin, via de bijkeuken. Vanuit de bijkeuken kan je tevens de trap af naar de kelder.

Woonkamer, eetkamer en keuken staan in open verbinding met elkaar, maar kunnen ook worden afgesloten door middel van schuifdeuren. Als de schuifdeuren open staan, zijn er lange zichtlijnen dwars door de woning, waardoor er optimaal contact is met het bos rondom de woning.

Op de eerste verdieping bevinden zich drie slaapkamers. De hoofdslaapkamer heeft een ruime inloopkast. De hoofdbadkamer, met groot bad en twee douches, bevindt zich ook op deze laag. De werkkamer, die grenst aan de hal, heeft nog een klein badkamertje, die deze ruimte geschikt maakt als gastenverblijf.

 

 

 

 

 



<< First | < Previous Next > | Last >>